Lawendowa 2
Projekt jedenastu budynków mieszkalnych dwulokalowych w zabudowie szeregowej. W dynamicznie rozwijającej się północnej dzielnicy miasta Tychy zaprojektowaliśmy kameralne osiedle apartamentów.
Budynki zostały zgrupowane w trzy szeregi. Dla każdego szeregu zastosowaliśmy indywidualną kompozycję kolorystyczną ścian i balustrad, aby w całości harmonijnie ze sobą współgrały.
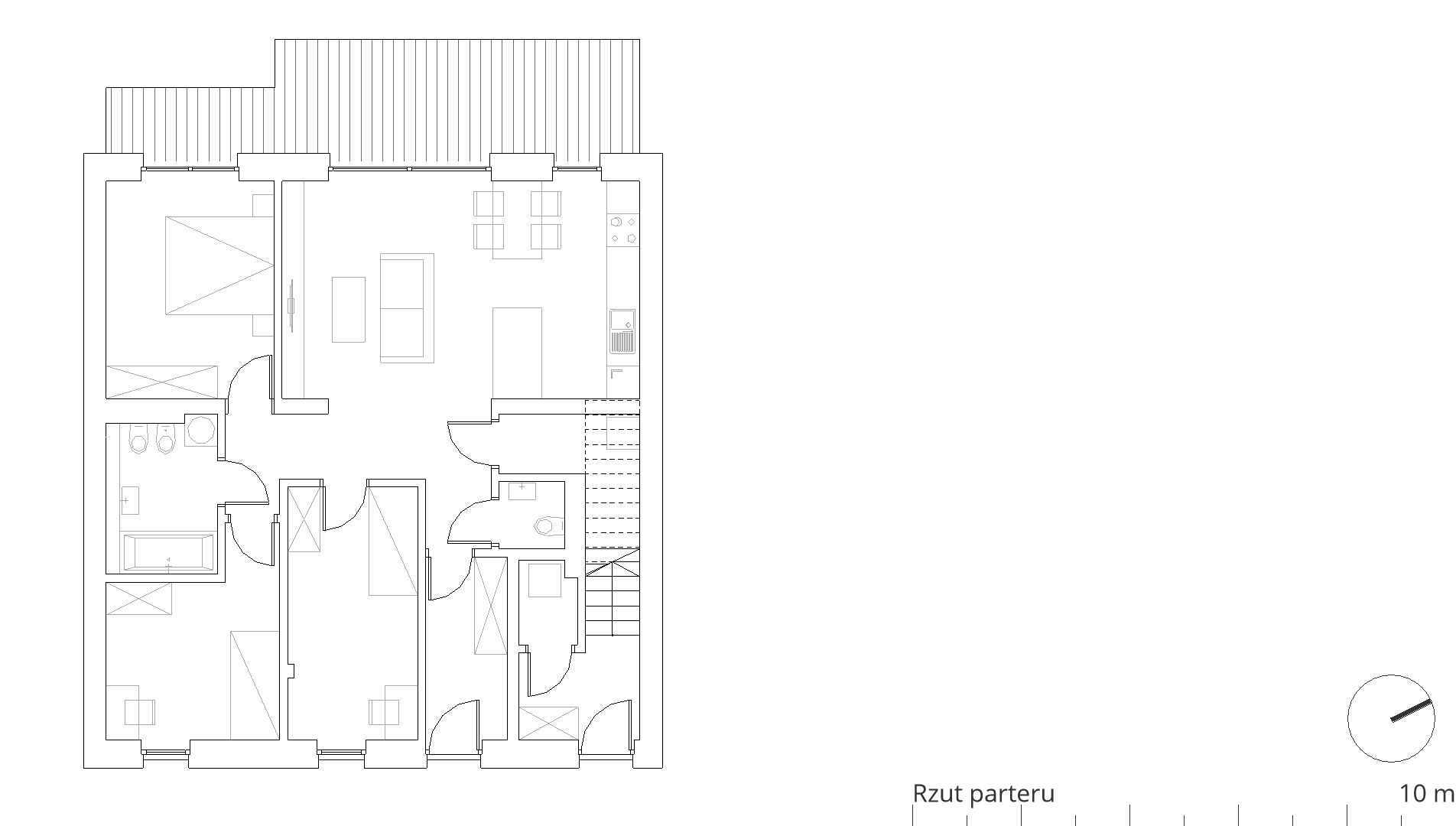
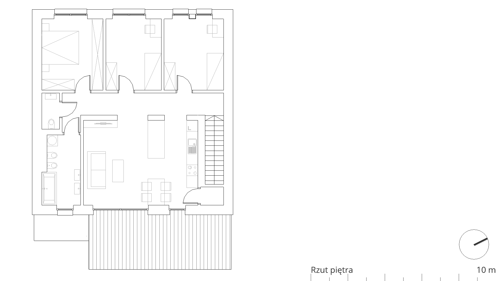
Segmenty zostały podzielone w poziomie na dwa odrębne lokale z wejściem od strony parkingu. Taras apartamentu górnego postanowiliśmy umiejscowić po przeciwległej stronie względem ogrodu apartamentu dolnego. Takie rozwiązanie zapewni mieszkańcom większą prywatność.
Mieszkania posiadają bardzo czytelny układ funkcjonalny, otwartą kuchnię na salon oraz komfortowe pokoje mieszkalne.









